往期阅读
当前版: 21版 上一版  下一版
上一篇    下一篇
放大 缩小 默认   

“五月置业季”报纸“看”户型

  和平区约109平方米三室

  本市首个现房销售精致高层作品,极具目前楼市居住产品的多个细节优势,拥有城市中心区的繁华。

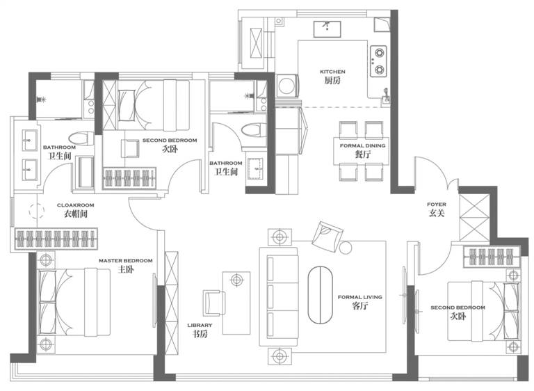
  河西区约128平方米三室

  该产品闹中取静,既有城市的繁华也有悠闲自得的生活质量,产品包括建筑面积约89—108平方米的26层高层及128—143平方米的17层小高层。

  河北区约126平方米三室

  中环线内低密度居住区,私享约22000平方米的江南园林式私家花园,坐拥北运河带状公园与问津园,享有便捷的地铁上盖资源,兼得城市繁华与自然静谧。

  南开区约153平方米洋房

  阔敞舒适的4.5米大开间,南北双向观景阳台,270°观景设计,升级第三功能空间,置身于这部建筑作品之中,心静如水,而激起涟漪的是对拥有这一经典居住艺术品的追求。

  红桥区约111平方米三室

  项目本身的品质和科技含量带动了区域的居住品质提升,项目不仅拥有地铁资源,更享有高铁、城际以及无缝接驳的空铁联运资源,通达的交通枢纽让出行更便捷。

  本版户型图由企业提供

  河东区约100平方米三室

  项目位于河东区腹地,拥有优质的教育及便捷的轨道交通资源,主力户型面积约100—150平方米,项目独有的内湖景观带来全新的品质居住感受。

上一篇    下一篇
 
标题导航
   第01版:要闻
   第02版:要闻
   第03版:城事
   第04版:城事
   第05版:城事
   第06版:特稿
   第07版:特稿
   第08版:特别策划
   第10版:社区
   第11版:天下
   第12版:法治
   第13版:文化
   第14版:服务
   第15版:体育
   第16版:体育
   第17版:副刊
   第18版:副刊
   第19版:专刊
   第20版:专刊
   第21版:专刊
   第22版:专刊
   第23版:专刊
   第24版:天津卫
“五月置业季”搭伴“逛”房源
“好房子” 焕新居住意识
“五月置业季”报纸“看”户型
征集百姓置业心里话 “买房子”还是“租房子”